Located in the heart of West Queen West, Prime Seafood Palace (PSP) is a culinary escape from the bustling streets of Canada’s most populated city, Toronto.
PSP was imagined as a light-filled wood cathedral, lining an otherwise inconspicuous existing brick-clad building that blends into the city’s urban fabric. This was an exercise in taking the refinement of Omar Gandhi Architect’s (OGA) residential work and carrying that rigour through to this commercial project.The principal goal was to create a timeless space, free of trends, with local, natural materials that develop a patina and continue to enrich the restaurant over time. Designing with wood and light was the starting point for the design. The neutral material palette, comprised primarily of white maple and brass, creates a backdrop for the main act - the unpretentious but exceptional food of cherished Canadian chef Matty Matheson.
PSP’s design was also inspired by Matty’s East Coast roots and admiration for both Japanese and Scandinavian architecture. Matty’s career began at Le Select, a celebrated French Bistro in Toronto, which helped inform his appreciation for the world of food.PSP finds Matty returning to the kitchen fundamentals that he first honed at Le Select – the restaurant’s menu reflects a reverence for classic steakhouse principles presented with extraordinary restraint. The restaurant’s sourcing, techniques and menu demonstrates the intentional manner in which they look to elevate the classic steakhouse concept in which the produce is treated with the same esteem as the meat and seafood. This is executed through cooking with cherry wood coals from local farms, sourcing produce from Matty’s own Blue Goose Farm, beef from Ontario, and seafood from the Atlantic. In short, the freshness and quality of the food is the star of the show – presented in a straightforward manner.
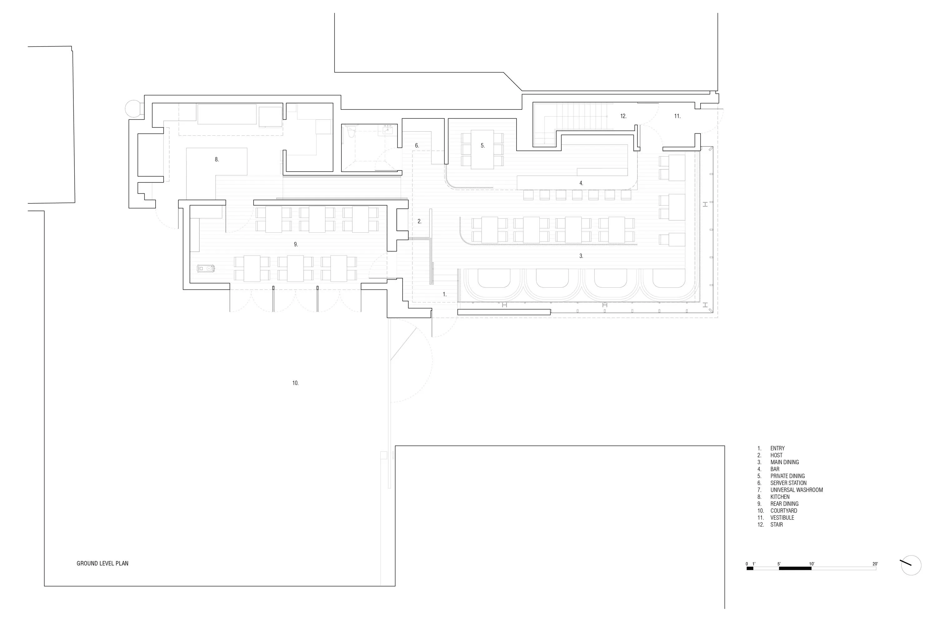
PSP is unexpected - a space to truly experience in person. The main entry is located in a quiet courtyard, drawing patrons away from the humming urban activity of Queen Street West. Upon entry into the main dining space, patrons are presented with a two-storey wood slat vault suspended from the roof above. A wood clad cloud runs the length of the restaurant and filters indirect natural light, creating a soft glow at the interior. Vertical brass screens filter activity from the street to provide privacy and intimacy while maintaining a subdued connection to the streetscape beyond.
PSP is elegant, yet warm and welcoming. Natural leather upholstered booths wrap two walls of the main dining space, drawing cues from traditional diners, including Matty’s grandfather’s Blue Goose Restaurant on Prince Edward Island. A cantilevered canopy hovers over the bar and semi-private dining area. Carefully curated music adds to the full sensory experience. A state-of-the-art lighting control system incorporates astronomical timing that responds to exterior light levels and automatically adjusts interior light levels. These considerations underscore the restaurant’s attention to detail in the customer experience – taking care of the customer from ambiance to intuitive service and stimulating food and drink.OGA collaborated with Coolican & Company on custom furniture, including the large booth tables with a concealed drawer for the restaurant’s Perceval steak knives from Thiers, France. Coolican’s special edition maple “Edwin Chair” incorporated brass spindles to reference the brass screens throughout the main dining space.
Matty and his team worked closely with OGA on the design of the space, development of details, and selection of products and finishes. This collaborative process included visits to the millworker’s shop to review full scale mock-ups of the vault and booths and to Coolican’s studio to test custom-made furniture. The oak flooring in the main dining space extends up the gentle ramp towards the open concept kitchen, providing a glimpse into the inner workings of the talented culinary team cooking over the open wood-burning hearth.
The open concept kitchen showcases thoughtful food that reflects the abundance of ingredients available locally and globally. The menu rotates with the seasons and ingredients available at that time, utilizing each ingredient to its fullest potential. The transparency of the menu and source of its ingredients are reflected in this kitchen space that is visible to customers.
The double height accessible restroom lined with textured Bianco Carrara bamboo tile is washed in natural light from the skylight above. The design of Brandon Gore’s custom concrete sink is inspired by a hydrological map of Lake Erie and incorporates a recessed brass marker indicating Matty’s farm in Fort Erie.
In contrast to the main dining space, the white-washed pine interior and wood-burning stove of the rear addition are reminiscent of Ontario cottage country. Three pairs of steel and glass doors open the space to the exterior courtyard that fills with warm evening light in the summer months.
Architect
Omar Gandhi Architect
Year
2022
Design Team
Omar Gandhi, Stephanie Hosein, Jeff Walker, John Gray Thomson, Chad Jamieson, Lauren McCrimmon, Kristi MacDonald, Liam Thornewell
Restaurant Team
Matty Matheson, Gary Quinto, Coulson Armstrong, and Our House Hospitality Company
Physical model
Mary Ma
Structural
Diomis Engineering
Mechanical & Electrical
Spline Group
Code
LMDG Building Code Consultants Ltd.
Lighting Controls & Dimming
OneLX
Custom furniture
Coolican & Company
Photos
Adrian Ozimek
Doublespace
Millworker (primary)
Canara Woodworking Inc.Additional millwork
CNC Cutting Inc.Custom concrete sinks
Brandon Gore (Hard Goods)
Custom booth pendants
Concord Custom Lighting
Custom signage
Filo Timo
Art
Darby Milbrath
Specialty paint finish
Handsome Painters
Uniforms
Rosa Rugosa
Contractor
Mazenga Building Group (primary), Bootstrap Design/Build
Manufacturers/Suppliers
Moncer (engineered hardwood flooring), Baro Klaus (selected furniture & specialty lighting), Stone Tile (tile), KOL (fiber cement cladding), Vaughan Electrical Supply (lighting), Nella (equipment), Stovemaster (brick hearth), MBH (Steel/glass doors), Sørensen Leather
Video
Ivane Katamashvili